MutuOn
MutuOn
Scheda immobile


Logo Cod. immobile: 5577
BARI, ND - VIA PAPA GIOV. PAOLO 1°
Locale Commerciale
Vani: 2 - Mq commerciali: 175 - Piano: Piano terra - Livello strada
Posto Auto
Tipologia: Vendita

Richiesta:
250.000 €
Descrizione immobile
RIFINITO LOCALE COMMERCIALE IN BARI POGGIOFRANCO LOCATO A PALESTRA, OTTIMO INVESTIMENTO, POSSIBILITA DI AVERLO LIBERO DA INQUILINO. QUATTRO INGRESSI, POSSIBILITA' DI FRAZIONAMENTO
Informazioni sull'immobile
Categoria Locale Sottocategoria Commerciale
Vani 2 Mq 175 (calpestabili 167)
Stato immobile Rifinito Riscaldamento Autonomo
Atrio No Affacci VIA PAPA GIOV. PAOLO 1° - VIA LUCARELLI
Servizi    
Classe energetica IN CORSO
La classe di Rendimento Energetico è un indice delle performance termiche che indica i livelli di riscaldamento e raffrescamento richiesti in inverno ed in estate. Gli immobili di classe A o B garantiscono maggior comfort e sono i più efficienti in termini di consumi di energia.
Foto dell'immobile
Esterno
thumb
thumb
thumb
thumb
thumb
thumb
thumb
thumb
thumb
thumb
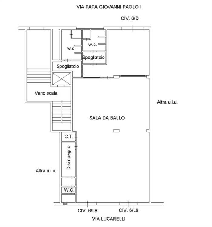
Planimetrie
Planimetria
Mappa

Mutuon